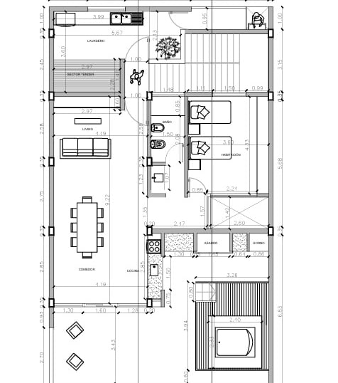
Planos Preliminares
Planos de diseño preliminar para viviendas nuevas o ampliaciones. Optimización de metros cuadrados. Propuestas de circulación eficiente. Soluciones para lotes chicos o con limitaciones.
Pack 1 — Planos Preliminares + 2 Cortes de Arquitectura
$3.500 x m²
Incluye:
Planta arquitectónica preliminar.
Corte longitudinal.
Corte transversal.
¿Para qué sirve?
Este pack permite visualizar la organización espacial y la altura real de los ambientes. Es ideal para:
Analizar circulaciones, medidas y proporciones.
Presentar propuestas de distribución al cliente.
Estimar metros cuadrados reales para presupuestos.
Iniciar conversaciones con constructores sin tener aún el proyecto final.
¿Quién lo compra?
Personas que quieren comenzar a definir su proyecto de forma económica pero con suficiente información técnica para tomar decisiones.




Pack 2 — Planos Preliminares + Fachada
$3.500 x m²
Incluye:
Planta arquitectónica preliminar.
Diseño completo de la fachada principal.
¿Para qué sirve?
Este pack combina distribución y estética exterior. Es perfecto para:
Entender cómo se verá la casa desde el frente.
Modernizar fachadas existentes sin intervenir estructura.
Evaluar proporciones, materiales y estilo.
¿Quién lo compra?
Clientes que quieren renovar o construir y necesitan ver la imagen exterior antes de avanzar.
Pack 3 — Planos Preliminares + 2 Cortes + Fachada
$4.500 x m²
Incluye:
Planta arquitectónica preliminar.
Corte longitudinal y transversal.
Diseño completo de la fachada.
¿Para qué sirve?
Es un pack más completo que permite:
Ver distribución en planta.
Entender el edificio en sección (alturas, cambios de niveles).
Visualizar estética exterior.
¿Quién lo compra?
Personas que desean tener un concepto sólido y técnicamente claro del proyecto antes de pensar en el anteproyecto completo.
✔ Proceso 100% online.
✔ Comunicación clara y directa.
✔ Entregas visuales fáciles de entender.
✔ Enfoque crítico: cuestiono lo que no funciona y propongo lo que sí.
✔ Diseño optimizado para presupuesto real.
✔ Estilo moderno, elegante y completamente funcional.
Como Trabajamos
Por qué elegirnos?
Transformamos espacios con ideas concretas, no con complejidades innecesarias.
Trabajo rápido, ordenado y con visión estética sólida.
Entregamos soluciones reales, pensadas para ser construidas.
Estamos especializados en reformas y en sacar el máximo de cada metro cuadrado.
Nuestro enfoque es personal y estratégico: acompaño, explico y doy seguridad en cada decisión.
